Design & Drafting work

Client: Ryan Levis & Associates, Inc.
    2182 Iliili Road, Suite A, Maui, HI 96753
    Tel.: (808) 268-8475

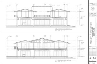
Project: McCoy Residence Renovation, Maui, HI
        6,390 sq.ft.,
Service rendered
: Design support - Preparation of Construction Documents -  
3D work/Renderings
Click to enlarge
Click to enlarge